Home
Servicios
Rehabilitación de edificios
Estudio de interiorismo
Tasaciones de propiedades en Madrid
Cómo trabajamos
Portfolio
Equipo
Contacto
Home
Servicios
Rehabilitación de edificios
Estudio de interiorismo
Tasaciones de propiedades en Madrid
Cómo trabajamos
Portfolio
Equipo
Contacto
Boadilla
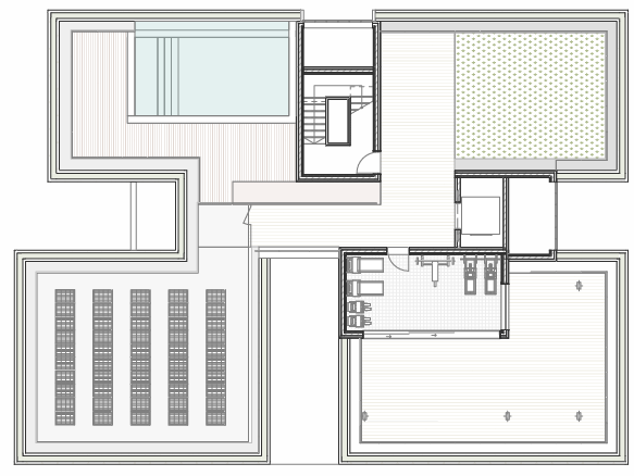
Proyecto de viviendas
Ver más proyectos
Diseño
Planos
Home
Equipo
Servicios
Contacto
Facebook
Instagram
© Nero Estudio 2025