Ibiza

Proyecto inmueble

Diseño

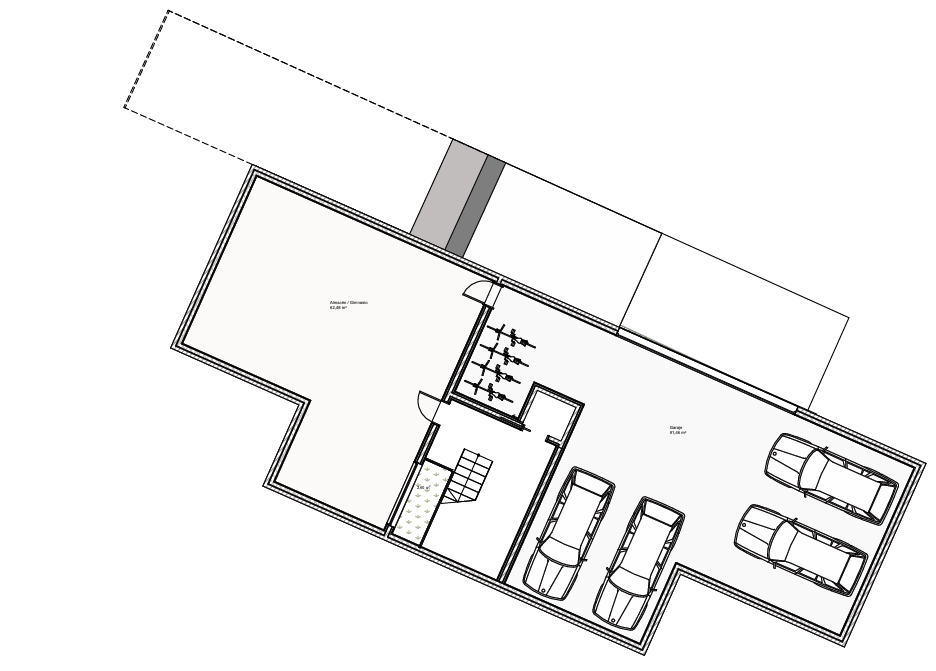
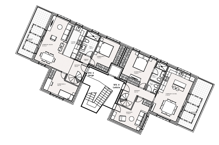
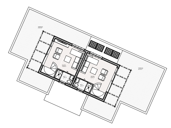
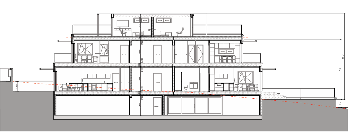
Planos

© Nero Estudio 2025